Community Co-op Eco-Village
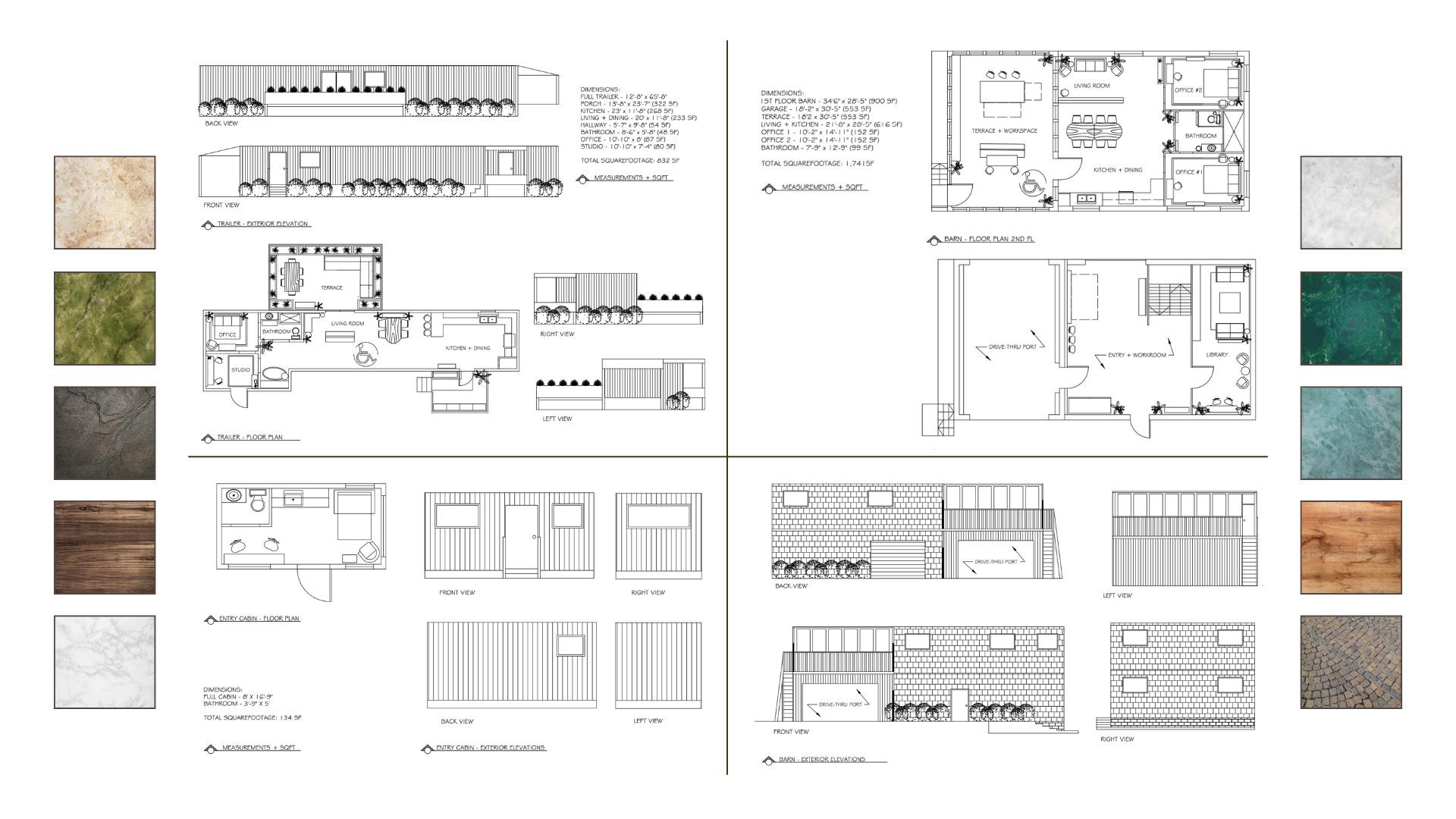
The sub-urban co-op eco-village was designed to foster off-grid sustainable living, creative collaboration, and a deep connection to nature, all while remaining firmly rooted in the local context. This design process is driven by the vision of creating a fully self-sufficient space that emphasizes artist-led productions and educational engagement with surrounding city neighborhoods. The co-op requested conceptual plans and existing site measurements for a holistic, ecologically-minded development of the area’s first eco-village on the property, which included a cluster of existing buildings slated for renovation.
This off-grid eco-village aims to be a self-sustaining community where members can live, work, and grow together, creating a harmonious and resilient lifestyle. Key sustainable techniques such as rainwater harvesting, passive solar heating, and natural cooling methods are incorporated into all existing structures to reduce reliance on external energy sources.
The design makes use of on-site materials within the existing buildings, all to co-create a unique design that shares elements from the properties past to inspire and hold up its budding future. Natural building materials, such as limestones and reclaimed wood, were incorporated throughout the site to both minimize the carbon footprint and embed the eco-village within its surroundings.
By integrating design principles that prioritize ecological wellbeing and communal living, this eco-village provides a vibrant space for members to thrive while contributing to a greater global movement toward earth-honoring dwellings.






