Community Co-working Barn
We were honored to partner with the local co-op in Nashville to help reimagine their existing barn and activate it as a dynamic hub for their community. Located just outside the city, this redesigned space is dedicated to fostering collaboration, creativity, and connection. Our goal was to create an environment where members can rest, study, and build together, using the power of shared resources and a sustainable design ethos.
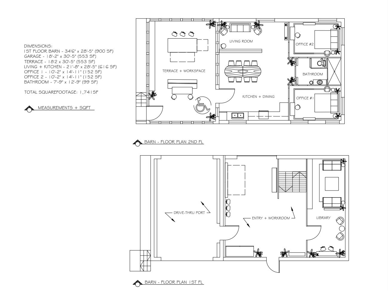
Designed to serve as both a retreat space and a working hub, we wove together dedicated areas for the co-op’s herbalists, artisans and wellness practitioners, equipped with everything needed for preparing, studying, and creating natural remedies and adornments. This two-story barn houses a communal metal working shop, delivery port, library, co-working terrace, living/dining room and kitchen, in addition to (2) bedrooms and bathroom for overnight guests and seasonal residents.
Whether joining a retreat or collaborating with fellow creatives, this space is designed to empower spiritual ease and make way for unforgettable memories.




